Commercial Realty Advisors Northwest LLC

Retail Brokerage & Tenant Representation503.274.0211

Ellen Browning Building

Ellen Browning Building

Prime Division Retail & Restaurant Space!
Status:For Lease
Location: Portland, OR

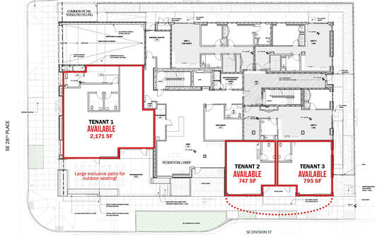
Available:

  • TENANT 1 – RESTAURANT SPACE: 2,171 SF corner restaurant space featuring large exclusive outdoor patio space (approx 855 SF) | New owner willing to build the spaces out (turnkey minus FF&E) for the right restaurant tenant!
  • TENANT 2 & 3 – RETAIL SPACE: 1,542 SF retail space (can be divided into two micro retail spaces – 747 SF and 795 SF) |Space will be delivered in move-in ready condition for retail use (including restroom, HVAC, outlets, general lighting, polished concrete floor, etc), in progress.

  • Located at the signalized intersection of Division & 28th (NE corner) in the heart of the Division retail corridor. The Ellen Browning Building offers tenants beautifully designed and positioned restaurant and retail opportunities.
  • Mixed-use project with luxury residential units above ground floor commercial space.
  • Spaces feature high ceilings, expansive floor to ceiling glass storefronts, and setback from SE Division Street. Corner restaurant space features rare exclusive patio area.
  • Available now!
Walk Score 96 | Bike Score 94 | Transit Score 55