Commercial Realty Advisors Northwest LLC

Retail Brokerage & Tenant Representation503.274.0211

Essex House

Essex House

Located in the heart of the downtown central business district. 156-unit Class A apartment building.
Status:For Lease
Location: Portland, OR

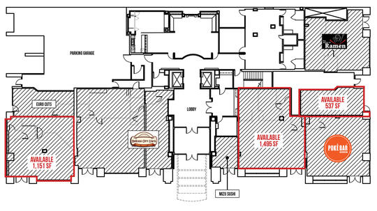
Available:

  • 537 SF
  • 1,151 SF endcap
  • 1,495 SF (Do not disturb tenant) Currently occupied by Portland Kettle.

  • Surrounded by many performing art venues, including Keller Auditorium, and retail projects in the immediate area.
  • Neighborhood comprised of several residential and office tenants that generate substantial downtown activity.
  • Area retailers include Portland Kettle Co., Bridge City Cafe, Mizu Sushi, The House of Ramen, Morton’s Steakhouse, Potbelly Sandwich Shop, 24 Hour Fitness, Marriott, Starbucks and more.
  • Motivated Landlord!
  • Please call for rates.
Walk Score = 96 | Bike Score = 90 | Transit Score = 97