Commercial Realty Advisors Northwest LLC

Retail Brokerage & Tenant Representation503.274.0211

Block 1 @ Port of Vancouver

Block 1 @ Port of Vancouver

Join the thriving Vancouver Waterfront District along the Columbia River!
Status:For Lease
Location: Vancouver, WA

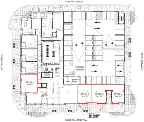
Available:

  • Retail 1: 974 SF
  • Retail 2: 931 SF
  • Retail 3: 991 SF
  • Retail 4: 866 SF
  • Retail 2-3 can combine to 1,922 SF
  • $45.00 PSF/YR/NNN

  • Vancouver’s Waterfront curves along the Columbia River, offering sweeping river views and direct water access. This 32-acre master-planned development features 1.25 million SF of Class A creative office space, 250,000 SF of retail and dining, and 3,300 residential units. At its heart is the 7.3-acre Vancouver Waterfront Park, anchored by the iconic Grant Street Pier—a 90-foot cable-stayed pedestrian pier extending over the river. www.visitvancouverwa.com/waterfront
  • The Terminal 1 building provides 1,200 parking stalls in total- pay to park for public and building tenants, etc.
  • Available June 1 2026